Aliplast Ecofutural OC
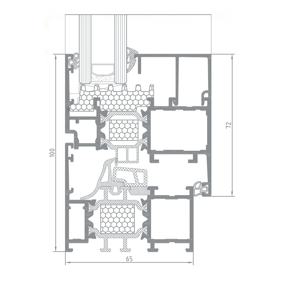
Einbautiefe 65 mm
System mit thermischer Trennung
Flügel nahezu bündig mit Rahmen
Sondermaße
konfigurieren
Sicherer
Versand

Vorteile auf einen Blick
- 3-Kammer Profil-System
- Energieeffizient mit einem U‐Wert von bis zu 1,1 W/m²K
- 2 Dichtungen
- System mit thermischer Trennung
- 65 mm Bautiefe
- Verglasungspakete ab 4 bis zu 50 mm (fix) / ab 14 bis 59 mm (Fensterflügel)
- Flexible Anpassungsmöglichkeiten

Profilbeschreibung
- Glasdichtung: Die Glasdichtung gewährleistet optimalen Schutz vor Wassereintritt.
- Dichtungen: Zwei Dichtungen, die eine hohe Beständigkeit gegen Feuchtigkeit und Witterungseinflüsse aufweisen
- Profilkammern: 3-Kammer-Profil aus Aluminium mit verbesserter thermischer Isolierung und optionalen Wärmedämmstegen
- Verglasung: 2- bis 3-fach Isolierverglasung mit einer Dicke von bis zu 59 mm; optional können auch Spezialgläser verwendet werden

Aliplast Ecofutural OC - Die Vorteile im Detail
Innovatives Aluminiumfenstersystem Aliplast Ecofutural OC
Das Aliplast Ecofutural OC System bietet eine einzigartige Lösung für moderne Fensterkonstruktionen. Eine der herausragenden Eigenschaften ist die spezielle Rahmenform, die das Flügelprofil vollständig verdeckt. Dies schafft ein ästhetisch ansprechendes Design, das durch die unsichtbare innere Glasleiste zusätzlich unterstützt wird.
Hochwertiges Aluminiumprofil mit ausgezeichneter Wärmedämmung
Das Aliplast Ecofutural und Ecofutural OC Profil besteht aus einem hochwertigen 3-Kammer-System mit thermischer Trennung. Diese Konstruktion erreicht exzellente Wärmedämmwerte, die den aktuellen gesetzlichen Vorgaben entsprechen und bietet zudem eine Bautiefe von 65 mm. Das System ermöglicht eine Wärmedämmung mit einem Wärmedurchgangskoeffizienten (Uw) von bis zu 1,1 W/m²K.
Farbvielfalt und Designoptionen
Die Profile sind in einer breiten Palette von Farben erhältlich. Dies bietet eine große Auswahl an ästhetischen Möglichkeiten, um den individuellen Stil und die architektonischen Anforderungen zu erfüllen.
Warum Aliplast Ecofutural OC?
Das Aliplast Ecofutural OC System bietet nicht nur eine spezielle Rahmenform, die das Flügelprofil vollständig verbirgt, sondern auch eine Vielzahl von Möglichkeiten zur individuellen Gestaltung. Durch die unsichtbare innere Glasleiste und die schlanken Profile können Sie Fensterlösungen schaffen, die nicht nur ästhetisch ansprechend sind, sondern auch perfekt zu Ihrer architektonischen Vision passen.
Mit seinem hochwertigen Aluminiumprofil und dem 3-Kammer-System mit thermischer Trennung bietet das Aliplast Ecofutural OC System hervorragende Wärmedämmwerte. Genießen Sie maximalen Komfort und senken Sie gleichzeitig Ihre Energiekosten, während Sie sich in Ihrem Zuhause entspannen.
Aliplast steht für Qualität und Nachhaltigkeit. Das Ecofutural OC System wird nach deutschen Qualitätsstandards hergestellt und garantiert eine lange Lebensdauer und zuverlässige Leistung.
Alufenster online bestellen bei fensterfabrik24.com
Verantwortlich für Produktsicherheit: siehe Herstellerinformationen
Das könnte Sie interessieren

