Drutex Iglo Hebeschiebetür HS
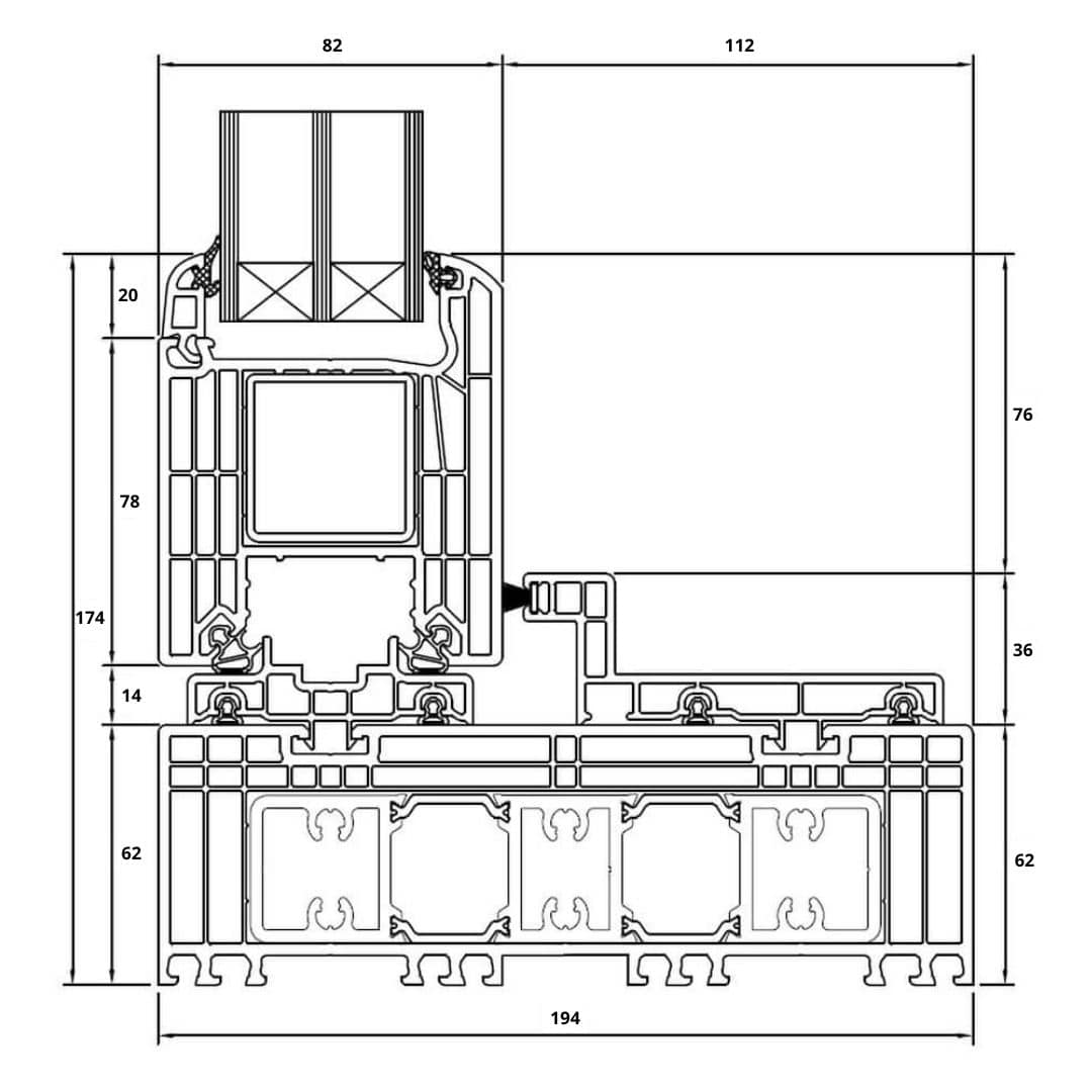
Einbautiefe 194 mm
7-Kammer Profil mit 3 EPDM-Dichtungen
Schallschutz bis zu 48 dB
Wunschtür
konfigurieren
Sicherer
Versand

Vorteile auf einen Blick
- 7-Kammer Profil-System
- Energieeffizient mit einem U‐Wert von bis zu 0,71 W/m²K (bestmögliche Variante)
- Schallschutz bis zu 48 dB
- 194 mm Bautiefe
- Bis zu RC2 Einbruchsschutz
- Viele Anpassungsmöglichkeiten
- Breite: ab 1700 mm
- Höhe: ab 1400 mm
Drutex IGLO HS Hebeschiebetür | Große Glasflächen und herausragende Wärmedämmung
Die Drutex IGLO HS Hebeschiebetür bietet beeindruckende Terrassenansichten mit großzügigen Glasflächen, die Innenräume in natürlichem Licht erstrahlen lassen. Mit einem stabilen 7-Kammer-Profil der Klasse A und einer Rahmentiefe von 194 mm ist sie nicht nur äußerst robust, sondern auch energiesparend. Das spezielle Dichtungssystem, bestehend aus einer Velourdichtung innen und EPDM-Dichtungen außen, sorgt für herausragende Wärmedämmwerte bis zu Uw 0,71 W/(m²K).
Die Tür bietet eine 3-fach-Verglasung, um den Wärmeverlust minimal zu halten. So bleibt das Raumklima angenehm und energieeffizient.
Dank der hochwertigen GU-Beschläge lässt sich die IGLO HS selbst bei schweren Flügeln bis 400 kg leicht bedienen. Für Sicherheit sorgen drei Riegelbolzen, und eine Mikroventilation ermöglicht sichere Belüftung bei Bedarf. Die niedrige Schwelle ist barrierefrei und ideal für moderne Wohnräume.

Profilbeschreibung
- Verstärkung mit thermischer Isolation
- Volle 2 mm Verstärkung
- 3-Scheiben-Paket
- Verzinkter Stahlrahmen im Scheibenzwischenraum
- 3 mm Verstärkung in U-Profilform
- 60 mm hohe Schwelle, die bündig mit dem Boden eingebaut wird

Drutex Iglo HS-Tür - Die Vorteile im Detail
Sicherheit für Ihr Zuhause
Die IGLO HS Hebeschiebetür bietet herausragende Sicherheit durch ihre fortschrittlichen Sicherheitsmerkmale. Der stabile G-U-Beschlag mit drei Sicherungsstiften, die speziell entwickelten beflockten Dichtungen und die verstärkten Aluminiumprofile im Rahmen garantieren zuverlässigen Schutz vor unbefugtem Zugang. Dank der stabilen Konstruktion ist die Tür auch bei einem Flügelgewicht von bis zu 400 kg äußerst widerstandsfähig und bietet hohen Einbruchschutz.
Komfortable Bedienung
Die IGLO HS Hebeschiebetür lässt sich dank des hochmodernen Beschlagsystems und der zwei unabhängigen Führungsschienen besonders leicht bedienen. Selbst bei größeren Türflügeln gleitet die Tür mühelos. Die integrierte Mikroventilation ermöglicht zusätzlich eine angenehme Belüftung, ohne die Sicherheit zu beeinträchtigen. Mit der innovativen Führungstechnologie und einer Tragfähigkeit von bis zu 300 kg ist die Bedienung auch für große Öffnungen komfortabel.
Individuelle Gestaltung für jeden Wohnstil
Mit der IGLO HS Hebeschiebetür gestalten Sie Ihren Raum nach Ihren individuellen Vorstellungen. Wählen Sie aus einer Vielzahl von Dekoren und Farben, um das Design an Ihren Stil anzupassen. Die hochwertige, langlebige Ausführung der Tür mit UV-beständigen Dekorfolien sorgt dafür, dass sie auch langfristig attraktiv bleibt. Setzen Sie auf Stil und Funktionalität und verschönern Sie Ihr Zuhause mit der IGLO HS Hebeschiebetür.
Auswahl an Farben
Warum Drutex Iglo HS-Tür kaufen?
Die Drutex Iglo HS-Tür ist die perfekte Wahl für all diejenigen, die Wert auf Energieeffizienz, Sicherheit und ein modernes Design legen. Ausgestattet mit einem robusten 7-Kammer-Profil und einer Einbautiefe von 82 mm sorgt die Tür für hervorragende Wärmedämmung und trägt so effektiv zu einem angenehmen Raumklima bei. Die speziell entwickelten beflockten Dichtungen bieten nicht nur exzellente Schalldämmung, sondern auch eine zuverlässige Abdichtung, um Zugluft und Feuchtigkeit fernzuhalten.
Für maximalen Einbruchschutz sorgt der hochwertige G-U-Beschlag, ausgestattet mit Sicherungsstiften und einem stabilen C-Profil im Türflügel. Damit ist die Tür auch bei hohen Belastungen äußerst widerstandsfähig und langlebig. Die Türen von Drutex garantieren Ihnen höchste Sicherheit für Ihr Zuhause.
Das Design der Drutex Iglo HS-Tür ist äußerst flexibel und lässt sich durch eine große Auswahl an Farben und Dekoren ganz nach Ihrem Geschmack anpassen. Ob moderne Farbtöne oder klassische Holzoptiken – die Tür fügt sich perfekt in jede Raumgestaltung ein.
Dank des innovativen Hebe-Schiebe-Systems lässt sich die Tür mühelos öffnen und schließen, selbst bei größeren Türflügeln. Für zusätzlichen Komfort können Sie die Tür mit einer Wärmeschutzverglasung oder einem automatischen Getriebe ausstatten, das die Bedienung noch einfacher macht.
Jetzt Ihre individuelle Drutex Iglo HS-Tür konfigurieren! Nutzen Sie unseren praktischen Konfigurator und gestalten Sie Ihre Traum-Tür nach Ihren Wünschen. Wählen Sie aus einer Vielzahl von Optionen für Farbe, Verglasung und Zubehör, und bestellen Sie noch heute!
Hebeschiebetür online bestellen bei fensterfabrik24.com
Verantwortlich für Produktsicherheit: siehe Herstellerinformationen
Das könnte Sie interessieren




